Buona sera a tutti, volevo chiedervi qualche consiglio su eventuali modifiche da apportare al mio impianto visto la competenza riscontrata leggendo il forum.
Abito in provincia di Mantova, abitazione singola 220 mq su 3 livelli ristrutturata, 50mm di coibentazione esterna, serramenti in alluminio con più tagli termici vetri con azoto ecc.
Brevemente vi descrivo l'impianto spero in modo esauriente:
5 pannelli solari rooth, accumulo multienergy rooth da 1200l con scambiatore sul solare, caldaia a condensazione 28kw immergas vitrx, riscaldamento alta temperatura AT e bassa temperatura BT. ( impianto fotovoltaico 4.6 kW )
La produzione di ACS avviene tramite scambiatore inserito nel accumolo con valvola a 3 vie pilotata da termostato, maggiore 50 gradi direttamente su uscita scambiatore, minore 50 gradi integrazione caldaia alimentata da uscita scambiatore ricircolo gestito da un flussometro.
Premetto che l'accumulo è posizionato in un locale garage a circa 15 metri dai collettori riscaldameto e dalla caldaia, le tubazioni di mandata e ritorno sono esterne, interrate ad una profondità di circa 40 cm parallele al marciapiede.
Il prelievo di acqua del riscaldamento AT e BT avviene su uno stacco a metà circa dell' accumulo con una pompa vedi distanza da collettori, settaggio 38 gradi si accende il bruciatore caldaia ed integra acqua calda nella parte alta dell'accumulo si spegne il bruciatore a 41 gradi.
Le 2 pt1000 che regolano lo start e stop del bruciatore caldaia sono posizionate la prima in corrispondenza del prelievo AT-BT l'altra circa 30 cm sopra la prima
Secondo voi l'eventuale inserimento di un ulteriore scambiatore su AT e BT può migliorare il rendimento dell'impianto di riscaldamento o consigliate qualche altro accorgimento?
In attesa di un vostro parere al riguardo.
Ringrazio
Consigli per modifica impianto termico
Moderatori: sergio&teresa, paolo
Re: Consigli per modifica impianto termico
duilio1 ha scritto:
Brevemente vi descrivo l'impianto spero in modo esauriente:
secondo me, vista la complessita del sistema, dovresti postare uno schema fatto al meglio possibile...
Non ho capito poi come viene regolato il riscaldamento.
Ciao,
F.
Re: Consigli per modifica impianto termico
fcattaneo ha scritto:duilio1 ha scritto:
Brevemente vi descrivo l'impianto spero in modo esauriente:
secondo me, vista la complessita del sistema, dovresti postare uno schema fatto al meglio possibile...
Non ho capito poi come viene regolato il riscaldamento.
Ciao,
F.
Ti spiego il funzionamento dell' impianto di riscaldamento
Dall'accumolo pompa 1 manda a colletttori AT e BT su collettore AT sui ritorni sono montate valvoline a spillo comandate dai termostati ambienti (termosifoni studiolo disbrigo, termoarredo ai bagni, ventilconvettori n° 3 in taverna ) il ritorno del collettore AT torna all'accumolo e alla caldaia perchè ho la possibilità con valvole manuali di usare accumolo o solo caldaia.
La pompa 1 manda anche al riscaldamento a pavimento BT, ci sono due valvole regolatrici di temperatura (Una di scorta all'altra ) che possono regolare l'acqua da 25 a 45 gradi sono manuali, poi pompa 2 con inverter manda a 2 collettori uno piano giorno uno piano notte ognuno con 8 valvoline ( zone ) comandate da termostati ambiente posti in ogni camera un termostato può pilotare anche più testine ci sono in totale 16 zone, camere con più zone perchè sono grandi a nord e perimetrali, ho fatto in modo che la velocità della pompa 2 venga regolata dal feedbeck di chiusura delle testine attraverdo una schedina elettronica che controlla lo stato dei feedbeck e aumenta o diminuisce la velocità della pompa 2 ho fatto questo principalmente per eliminare di notte il rumore fastidioso della pompa 2 in marcia.
Il ritorno dell'impianto BT torna all'accumolo e alla caldaia, anche in questo caso ho la possibilità con valvole manuali di escludere l'accumolo e funzionare solo con la caldaia.
Per quanto riguarda il disegno non saprei come fare mi sai consigliare qualche programmino con simbologia idraulica semplice da usare data la mia poca conoscenza in merito.
Ringrazio per una celere lettura della richiesta
Ciao duilio1
Re: Consigli per modifica impianto termico
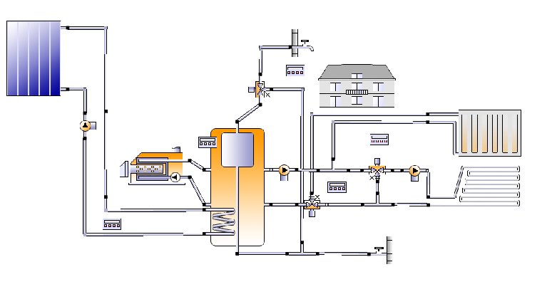
Invio file schema di massima del mio impianto solare termico disegnato come sono stato capace spero sia comprensibile comunque c'è anche la descrizzione dell' impianto.
In attesa ringrazio e saluto
duilio1
In attesa ringrazio e saluto
duilio1
- Allegati
-
- Picture0001.jpg
- (38.62 KiB) Mai scaricato
Re: Consigli per modifica impianto termico
Sinceramente sono un po in imbarazzo a discutere del tuo impianto, perche contiene tutte le pratiche che personalmente sconsiglio .
Io consiglio di non scaldare il boiler solare con una caldaia e di regolare climaticamente la mandata del riscaldamento; inoltre di usare una sola temperatura di riscaldamento e una sola pompa...
Il tuo impianto non segue nessuno di questi suggerimenti.
Per mitigare la situazione puoi fare questo :
1- ridurre la temperatura della caldaia al minino necessario a mantenere un certo comfort dell'acqua sanitaria ( il boiler deve stare alla T piu' bassa possibile ).
2- ridurre la temperatura dell'impianto a pavimento in modo da privilegiare un tempo lungo di circolazione dell'acqua e ridurre drasticamente i tempi dove non circola l'acqua ( questo migliora il comfort e la sensazione di benessere; una casa a 21 gradi con il pavimento "spento" da una sensazione di calore minore di una a 19 gradi con il pavimento 'acceso' .. questo perche la sensazione radiante del pavimento e' presente solo quando circola l'acqua).
3- idem punto 2 ma sulla parte AT, se possibile.
4- ridurre il meno possibile la portata delle pompe in modo da ridurre l'energia necessaria e consumata dalla circolazione.
Ciao,
F.
Io consiglio di non scaldare il boiler solare con una caldaia e di regolare climaticamente la mandata del riscaldamento; inoltre di usare una sola temperatura di riscaldamento e una sola pompa...
Il tuo impianto non segue nessuno di questi suggerimenti.
Per mitigare la situazione puoi fare questo :
1- ridurre la temperatura della caldaia al minino necessario a mantenere un certo comfort dell'acqua sanitaria ( il boiler deve stare alla T piu' bassa possibile ).
2- ridurre la temperatura dell'impianto a pavimento in modo da privilegiare un tempo lungo di circolazione dell'acqua e ridurre drasticamente i tempi dove non circola l'acqua ( questo migliora il comfort e la sensazione di benessere; una casa a 21 gradi con il pavimento "spento" da una sensazione di calore minore di una a 19 gradi con il pavimento 'acceso' .. questo perche la sensazione radiante del pavimento e' presente solo quando circola l'acqua).
3- idem punto 2 ma sulla parte AT, se possibile.
4- ridurre il meno possibile la portata delle pompe in modo da ridurre l'energia necessaria e consumata dalla circolazione.
Ciao,
F.
Re: Consigli per modifica impianto termico
Problemi ce ne sono dato che invio richieste per poter migliorare il mio impianto,
inserire uno scambiatore nell'accumolo per l'impianto di riscaldamento e mettere la caldaia in serie allo stesso, installare una sonda esterna e far pilotare l'impianto di riscaldamento, la temperatura dell'acqua nello scambiatore del riscaldamento mantiene indirettamente una temperatura x nell'accumulo, credi sia una soluzione? Però l'acqua nell'accumuo rimane sempre senza ricircolo credi sia un problema?
Altra considerazione è la pompa 1 (vedi descrizione impianto ) mandata riscaldamento lontano dai collettori e dalla caldaia credi che solo la pompa di circolazione della caldaia sia sufficiente per la circolazione dall'accumulo alla caldaia?
ciao
duilio1
inserire uno scambiatore nell'accumolo per l'impianto di riscaldamento e mettere la caldaia in serie allo stesso, installare una sonda esterna e far pilotare l'impianto di riscaldamento, la temperatura dell'acqua nello scambiatore del riscaldamento mantiene indirettamente una temperatura x nell'accumulo, credi sia una soluzione? Però l'acqua nell'accumuo rimane sempre senza ricircolo credi sia un problema?
Altra considerazione è la pompa 1 (vedi descrizione impianto ) mandata riscaldamento lontano dai collettori e dalla caldaia credi che solo la pompa di circolazione della caldaia sia sufficiente per la circolazione dall'accumulo alla caldaia?
ciao
duilio1
Re: Consigli per modifica impianto termico
duilio1 ha scritto:
Problemi ce ne sono dato che invio richieste per poter migliorare il mio impianto,
Posso immaginare consumi elevati di gas, scarsa resa del solare, pessimo comfort e alti consumi elettrici....
duilio1 ha scritto:inserire uno scambiatore nell'accumolo per l'impianto di riscaldamento e mettere la caldaia in serie allo stesso, installare una sonda esterna e far pilotare l'impianto di riscaldamento, la temperatura dell'acqua nello scambiatore del riscaldamento mantiene indirettamente una temperatura x nell'accumulo, credi sia una soluzione? Però l'acqua nell'accumuo rimane sempre senza ricircolo credi sia un problema?
Non ho capito bene la soluzione che proponi.. comunque io farei cosi :
- caldaia che manda direttamente alll'impianto a pavimento, magari con la possibilita di usare la parte At alla stessa temperatura; naturalmente con regolazione climatica attivata e sonda esterna.
- ritorno che passa nell'accumulo e lo mantiene alla T di ritorno; quindi l'acs verrebbe solo preriscaldata, dal solare e/o dal ritorno del riscaldamento.
- ACS prodotta in istantanea tramite uno scambiatore a piastre e se la caldaia non rende possibile quetso tipo di gestione, valuterei di inserire una caldaietta istantanea solo x acs ( tipo Rinnai ) da collegarsi all'uscita del boiler.
La pompa inserita nelle caldaie di solito basta per 220 / 270 mq. di pavmimento radiante!!!! peccato che molti installatori e termoasini continuino ad ignorare questa cosa e mettano pompe come fossero noccioline...
Saluti,
F.
Re: Consigli per modifica impianto termico
Credo che l'inserimento di una caldaietta per produzione ACS ora non sia di facile attuazione dato che il gas metano è piuttosto lontano dall'accumulo, per quanto riguarda il resto penso siano buoni consigli , ma rimane un problema nel periodo estivo quando l'accumulo raggiunge temperature molto elevate, aumenta la pressione all'interno, pertanto se non chiudo valvole manuali su ritorno riscaldamento la pressione aumenterebbe in modo pericoloso, altrimenti dovrei inserire valvole di non ritorno.
Scarteresti a priori la possibilità di inserire nell'accumulo uno scambiatore per AT e BT?
saluti
duilio1
Scarteresti a priori la possibilità di inserire nell'accumulo uno scambiatore per AT e BT?
saluti
duilio1
Re: Consigli per modifica impianto termico
Potresti mettere una PDC ( una Nuos ) in casa che ti prepari l' ACS e programmata in inverno per funzionare durante il giorno in presenza di FV.
Puoi collegarla come l'impianto di Giuglio, con una pompetta di ricircolo che cairchi di calore la Nuos in estate, usando il calore presente nel tuo boiler solare . ( guarda l'animazione in fondo a questa pagina : http://www.portalsole.it/monitoraggio/d ... -line.html ).
In inverno invece preleverebbe in ingresso l'acqua preriscaldata dal boiler che, in questa stagione, avrebbe il solo scopo di integrare il riscaldamento.
L'aumento di pressione nel boiler NON deve esserci!! per evitarlo basta inserire un buon vaso di espansione sul circuito dell'acqua tecnica.
L'inserimento di serpentine aumenta i costi e riduce l'efficienza del sistema... la caldaia deve lavorare in climatica con sonda esterna.
Ciao,
F.
Puoi collegarla come l'impianto di Giuglio, con una pompetta di ricircolo che cairchi di calore la Nuos in estate, usando il calore presente nel tuo boiler solare . ( guarda l'animazione in fondo a questa pagina : http://www.portalsole.it/monitoraggio/d ... -line.html ).
In inverno invece preleverebbe in ingresso l'acqua preriscaldata dal boiler che, in questa stagione, avrebbe il solo scopo di integrare il riscaldamento.
L'aumento di pressione nel boiler NON deve esserci!! per evitarlo basta inserire un buon vaso di espansione sul circuito dell'acqua tecnica.
L'inserimento di serpentine aumenta i costi e riduce l'efficienza del sistema... la caldaia deve lavorare in climatica con sonda esterna.
Ciao,
F.
Chi c’è in linea
Visitano il forum: Nessuno e 9 ospiti