Salve a tutti, ho istallato di recente un impianto completo rotex (per completo intendo pompa esterna, hpsu compact 516, solaris 3 pannelli v26p, riscaldamento a pavimento collettori centraline valvole di zona ecc ecc) il problema ( ditemelo voi se è un problema o è normale) che a tutte le cose sopra descritte ho aggiunto un termocamino ( mod. Vulcano 25 solo con scambiatore primario e centralina con pompe a parte) e montato socondo lo schema fornitomi dal tecnico rotex consigliandomi una variante (che ho fatto) e cioè il tubo di mandata del tmc di inserirlo nella hpsu sul lato superiore prendendo una barra di rame, chiudere il fondo, fare dei fori lungo tutta la barra e inserirla a 80 cm max nel bollitore (allego schema rotex fornitomi) è corretto secondo voi? E se si è normale che sia i solari che il tmc aiutino così poco la compact nel riscaldamento?
Vi ringrazio in anticipo
A presto
Alessandro
Integrazione termocamino-solaris-hpsu
Moderatori: sergio&teresa, Jekterm
Integrazione termocamino-solaris-hpsu
- Allegati
-
- image.jpg
- (82.31 KiB) Mai scaricato
Re: Integrazione termocamino-solaris-hpsu
sudiciaro ha scritto:...
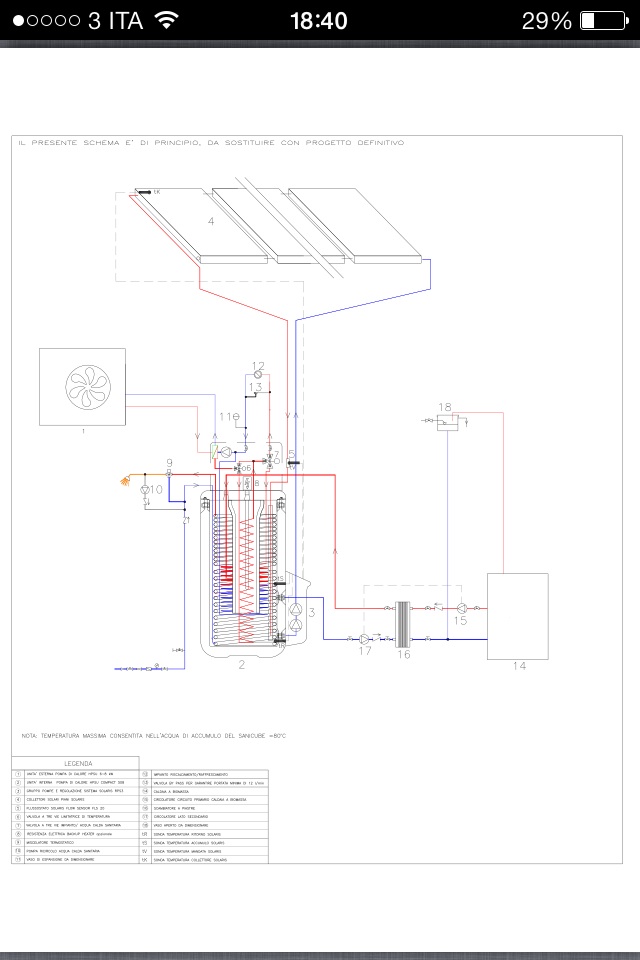
.....ho aggiunto un termocamino ( mod. Vulcano 25 solo con scambiatore primario e centralina con pompe a parte) e montato socondo lo schema fornitomi dal tecnico rotex consigliandomi una variante (che ho fatto) e cioè il tubo di mandata del tmc di inserirlo nella hpsu sul lato superiore prendendo una barra di rame, chiudere il fondo, fare dei fori lungo tutta la barra e inserirla a 80 cm max nel bollitore (allego schema rotex fornitomi) è corretto secondo voi? E se si è normale che sia i solari che il tmc aiutino così poco la compact nel riscaldamento?
Ma.. io so che non si puo fare integrazione termica x il riscaldamento con una fonte alternativa ( solare o TMC che sia ) senza inserire un altro accumulo...
Per il solare termico ed ipotizzando di trasferire solamente il calore in eccesso di un campo limitato a 2 MAX 3 pannelli, va bene lo schema Rotex con 1 solo accumulo... ma trasferire in quel modo il calore di una TMC e' impossibile.
Forse si puo migliorare un po la situazione spostando sul fondo dell'accumulo l'immissione di acqua calda in arrivo dalla TMC.. non certo inserendola solo x 80 cm .
Saluti,
Fabrizio.
Re: Integrazione termocamino-solaris-hpsu
Grazie per le tue considerazioni, avevo già pensato a un secondo accumulo con il ma secondo il tecnico rotex non serviva perchè sarebbe andato alla grande così come da schema......raccomandandosi oltretutto di non superare di 80 cm l'inserimento della barra traforata di rame.... Boh che tu sappia c'é un modo nel forum ti reperire lo schema idraulico per il secondo accumulo?
Grazie per la disponibilità
Grazie per la disponibilità
Re: Integrazione termocamino-solaris-hpsu
Il concetto del secondo accumulo e' semplice, va semplicemente in serie al primo... il ritorno del riscaldamento entra nella serpentina di carico del nuovo accumulo e l' uscita va dove va adesso.
Idem per la serpentina della ACS... l'ingresso acqua fredda va al nuovo accumulo, l'uscita va all'ingresso dell'acqua fredda di adesso.
L'acqua di volano del nuovo accumulo la scaldi con il TMC e il solare lo puoi lasciare dove e' adesso.. ( se avessi un campo solare piu' grande sarebbe opportuno spostare anche i pannelli su questo nuovo accumulo .
Per lo schema puoi seguire quello del mio impianto... l'accumulo rappresenta il tuo nuovo accumulo, mentre la caldaia rappresenta la tua PDC connessa al vecchio accumulo.
In questo il solare va lasciato nella posizione attuale mentre la TMC va messa al posto del solare nel mio schema.
Ciao,
F.
http://www.portalsole.it/solarthermal-s ... line-F.php
Idem per la serpentina della ACS... l'ingresso acqua fredda va al nuovo accumulo, l'uscita va all'ingresso dell'acqua fredda di adesso.
L'acqua di volano del nuovo accumulo la scaldi con il TMC e il solare lo puoi lasciare dove e' adesso.. ( se avessi un campo solare piu' grande sarebbe opportuno spostare anche i pannelli su questo nuovo accumulo .
Per lo schema puoi seguire quello del mio impianto... l'accumulo rappresenta il tuo nuovo accumulo, mentre la caldaia rappresenta la tua PDC connessa al vecchio accumulo.
In questo il solare va lasciato nella posizione attuale mentre la TMC va messa al posto del solare nel mio schema.
Ciao,
F.
http://www.portalsole.it/solarthermal-s ... line-F.php
- sergio&teresa
- Messaggi: 2005
- Iscritto il: mer giu 24, 2009 10:29 pm
Re: Integrazione termocamino-solaris-hpsu
Fabrizio, ma poi scusa: la HPSU non va in diretta sul riscaldamento senza pescare dall'accumulo tranne che per la piccola serpentina di integrazione posta sul fondo?
Con il collegamento che è stato fatto a sudiciaro il tmc interviene solo per garantire l'acs, sbaglio?
Con il collegamento che è stato fatto a sudiciaro il tmc interviene solo per garantire l'acs, sbaglio?
Segui il mio impianto su Portalsole:
Liveplant3
Liveplant3
Re: Integrazione termocamino-solaris-hpsu
sergio&teresa ha scritto:
Con il collegamento che è stato fatto a sudiciaro il tmc interviene solo per garantire l'acs, sbaglio?
No, non sbagli.
Se la TMC buttasse calore sul fondo qualcosa farebbe anche x il riscaldamento... ma cosi fa solo ACS.
Ciao,
F:
Re: Integrazione termocamino-solaris-hpsu
A che misura dovrei inserirla questa barra? Non vorrei fare danni.....
- sergio&teresa
- Messaggi: 2005
- Iscritto il: mer giu 24, 2009 10:29 pm
Re: Integrazione termocamino-solaris-hpsu
La serpentina di integrazione (che poi è piccola, quindi comunque integra poco) nell'hpsu è in fondo all'accumulo, quindi se quella barra non la mandi in fondo il TC non integrerà il riscaldamento.
Segui il mio impianto su Portalsole:
Liveplant3
Liveplant3
Re: Integrazione termocamino-solaris-hpsu
Ok per il secondo accumulo, mi sembra la soluzione più performante, sapreste consigliarmi qualche marca e modello adatto allo scopo? E di quanti litri? Considerate che lo spazio del locale tecnico non è molto.....
Altra domanda (approfitto della vs pazienza e competenza) visto che al tmc è collegata una centralina con scambiatore e piastre e due pompe, non potrei in qualche modo collegarla al ritorno dell'hpsu?
Altra domanda (approfitto della vs pazienza e competenza) visto che al tmc è collegata una centralina con scambiatore e piastre e due pompe, non potrei in qualche modo collegarla al ritorno dell'hpsu?
Torna a “Impianti Daikin/Rotex”
Chi c’è in linea
Visitano il forum: Nessuno e 14 ospiti