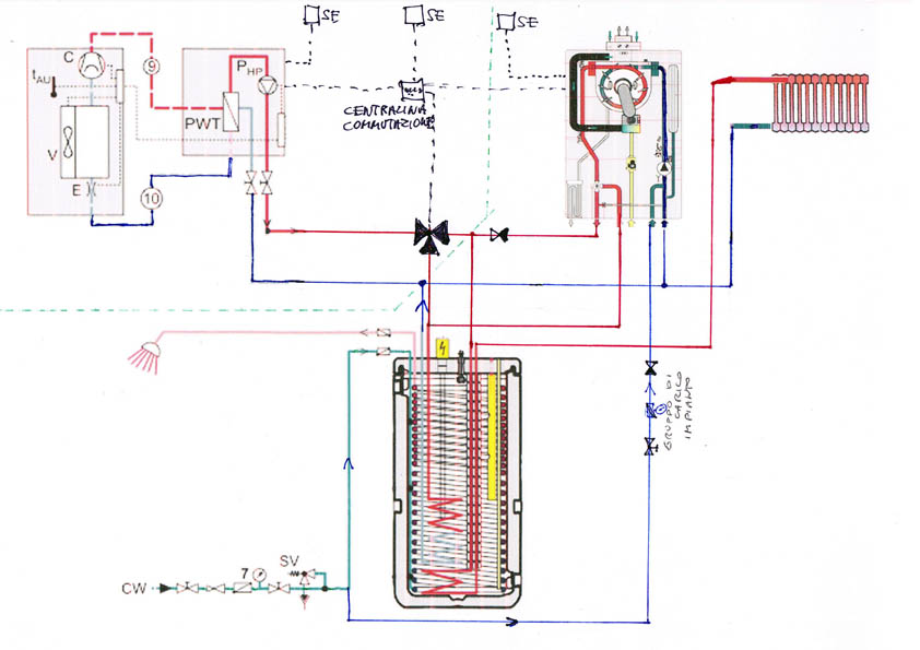
Volevo un giudizio se lo schema allegato potrebbe andare bene.
Da tenere presente che l'impianto verrà fatto in due tempi;
prima solo la caldaia a condensazione con regolazione climatica, unita a un HybridCube 544/32/0 con riscaldatore elettrico con controllo autonomo (EHS/500/1) da usare con il fotovoltaico
seconda fase, abbinamento una pdc da far funzionare, con centralina di commutazione, in alternanza alla caldaia con switch a 5°
Consiglio su schema impianto
- GuglielmoElT
- Messaggi: 87
- Iscritto il: lun mar 19, 2012 6:24 pm
Consiglio su schema impianto
- Allegati
-
- Schema impianto .jpg
- (90.83 KiB) Mai scaricato
Casa in zona E, GG 2364, Irradianza 253, -21° Est.
Impianto FV 3,9 Kw, 17 pannelli LDK, inverter Power-One Aurora
ACS nel bagno + distante con Nuos Evo Split
Impianto FV 3,9 Kw, 17 pannelli LDK, inverter Power-One Aurora
ACS nel bagno + distante con Nuos Evo Split
- sergio&teresa
- Messaggi: 2005
- Iscritto il: mer giu 24, 2009 10:29 pm
Re: Consiglio su schema impianto
Mi sfugge perché fai andare la mandata del riscaldamento nell'hyc. Inoltre non metterei il riscaldatore elettrico, assolutamente.
Segui il mio impianto su Portalsole:
Liveplant3
Liveplant3
- GuglielmoElT
- Messaggi: 87
- Iscritto il: lun mar 19, 2012 6:24 pm
Re: Consiglio su schema impianto
Mi sfugge perché fai andare la mandata del riscaldamento nell'hyc
Da uno schema Rotex, la mandata sulla serpentina piccola (quindi poca potenza) serve per limitare al minimo i cicli di ricarica ACS. Pensavo di fare lo stesso con la caldaia.
non metterei il riscaldatore elettrico, assolutamente
Lo userei solo quando serve per emergenza, con comando manuale, visto che é svincolato dall'essere comandato dalla PDC, non é un booster.
In più se non dovessi riuscire ad installare la PDC prima dell'estate, la utilizzerei per tenere in temperatura l'acqua, spegnendo la caldaia e sfruttando la produzione del fotovoltaico in autoconsumo (lo non é molto elegante).
Casa in zona E, GG 2364, Irradianza 253, -21° Est.
Impianto FV 3,9 Kw, 17 pannelli LDK, inverter Power-One Aurora
ACS nel bagno + distante con Nuos Evo Split
Impianto FV 3,9 Kw, 17 pannelli LDK, inverter Power-One Aurora
ACS nel bagno + distante con Nuos Evo Split
- GuglielmoElT
- Messaggi: 87
- Iscritto il: lun mar 19, 2012 6:24 pm
Re: Consiglio su schema impianto
Che ne pensi dell'utilizzo delle deviatrici, può andare bene?
Nella parte caldaia (linea tratteggiata a destra dello schema), sfrutterebbe la deviatrice interna della caldaia per la mandata ai radiatori o al carico del HYC.
La deviatrice della centralina Caleffi, farebbe lo stesso per la parte riguardante la PDC.
In questo modo i due generatori, al comando di switch da parte della centralina, sarebbero singolarmente autonomi nelle gestione climatica (ognuno con la sua), con due sonde di temperatura nel HYC, una quella della caldaia e una collegata alla centralina Caleffi.
Nella parte caldaia (linea tratteggiata a destra dello schema), sfrutterebbe la deviatrice interna della caldaia per la mandata ai radiatori o al carico del HYC.
La deviatrice della centralina Caleffi, farebbe lo stesso per la parte riguardante la PDC.
In questo modo i due generatori, al comando di switch da parte della centralina, sarebbero singolarmente autonomi nelle gestione climatica (ognuno con la sua), con due sonde di temperatura nel HYC, una quella della caldaia e una collegata alla centralina Caleffi.
Casa in zona E, GG 2364, Irradianza 253, -21° Est.
Impianto FV 3,9 Kw, 17 pannelli LDK, inverter Power-One Aurora
ACS nel bagno + distante con Nuos Evo Split
Impianto FV 3,9 Kw, 17 pannelli LDK, inverter Power-One Aurora
ACS nel bagno + distante con Nuos Evo Split
- sergio&teresa
- Messaggi: 2005
- Iscritto il: mer giu 24, 2009 10:29 pm
Re: Consiglio su schema impianto
Non so, mi sembra un po' troppo complicato. Io quel passaggio dalla serpentina piccola non lo farei.
Segui il mio impianto su Portalsole:
Liveplant3
Liveplant3
Torna a “Risparmio Energetico”
Chi c’è in linea
Visitano il forum: Nessuno e 6 ospiti